
New to the market is this recently renovated three-bedroom end-of-terrace property, ideally located in the sought-after Railway Square areajust a short stroll from Waterford City Centre and all local amenities. <br/> Enjoy the convenience of city living with SETUs College Street Campus, th (cont.)
New to the market is this recently renovated three-bedroom end-of-terrace property, ideally located in the sought-after Railway Square areajust a short stroll from Waterford City Centre and all local amenities.Enjoy the convenience of city living with SETUs College Street Campus, the Odeon Cinema, and Tesco Poleberry all less than five minutes away on foot. A range of excellent primary and secondary schools, including Mount Sion, Presentation, De La Salle, and Newtown, are all within a 1015 minute walk.
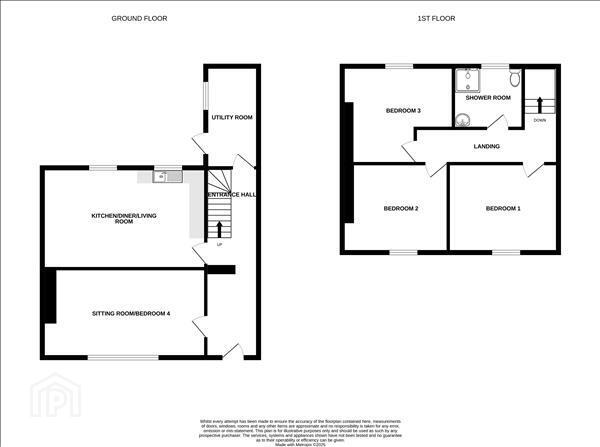
The ground floor offers flexible living space with a generously sized living room (which could easily serve as a fourth bedroom), an open-plan kitchen/dining/living area, and a utility room. Upstairs, you'll find three large double bedrooms and a modern family shower room.
Additional features include electric heating, PVC double-glazed windows throughout and a low maintenance and spacious west-facing rear garden, perfect for outdoor entertaining or relaxing.
Viewing is highly recommended and can be arranged through Sole Agents Barry Murphy Auctioneers.
Ground Floor
Entrance Hall: 7.13m x 1.75m. Laminate floor.
Sitting Room/Bedroom 4: 3.12m x 5.72m. Laminate floor.
Kitchen/Dining/Living: 3.31m x 5.85m. Tiled floor, fitted kitchen with integrated oven & hob.
Utility Room: 3.64m x 1.82m. Lino floor, plumbed for washing machine, door to rear garden.
First Floor
Bedroom 1: 3.12m x 3.72m. Laminate floor.
Bedroom 2: 3.14m x 3.67m. Laminate floor.
Bedroom 3: 3.44m x 3.98m. Laminate floor.
Shower Room: 2.25m x 2.5m. Fully tiled, WC, wash hand basin, electric shower.
