74 Tildarg Avenue,
Blacks Road, Belfast, BT11 9LW
4 Bed Mid-terrace House
Offers Over £149,950
4 Bedrooms
1 Reception
Property Overview
Status
For Sale
Style
Mid-terrace House
Bedrooms
4
Receptions
1
Property Features
Tenure
Leasehold
Energy Rating
Heating
Gas
Broadband Speed
*³
Property Financials
Price
Offers Over £149,950
Stamp Duty
Rates
£527.62 pa*¹
Typical Mortgage
Legal Calculator
In partnership with Millar McCall Wylie

Additional Information
- Excellent mid terrace property
- Living room
- Kitchen/Dining area
- Four well-proportioned bedrooms
- Ground floor bathroom
- Circa 903 sq ft
- uPVC double glazed window frames
- Gas fired central heating
- Garden areas to front and rear
Additionally the property benefits from gas fired central heating, uPVC double glazed window frames and garden area to front and rear.
The property will have wide ranging appeal to owner occupiers and investors. We can highly recommend an internal inspection.
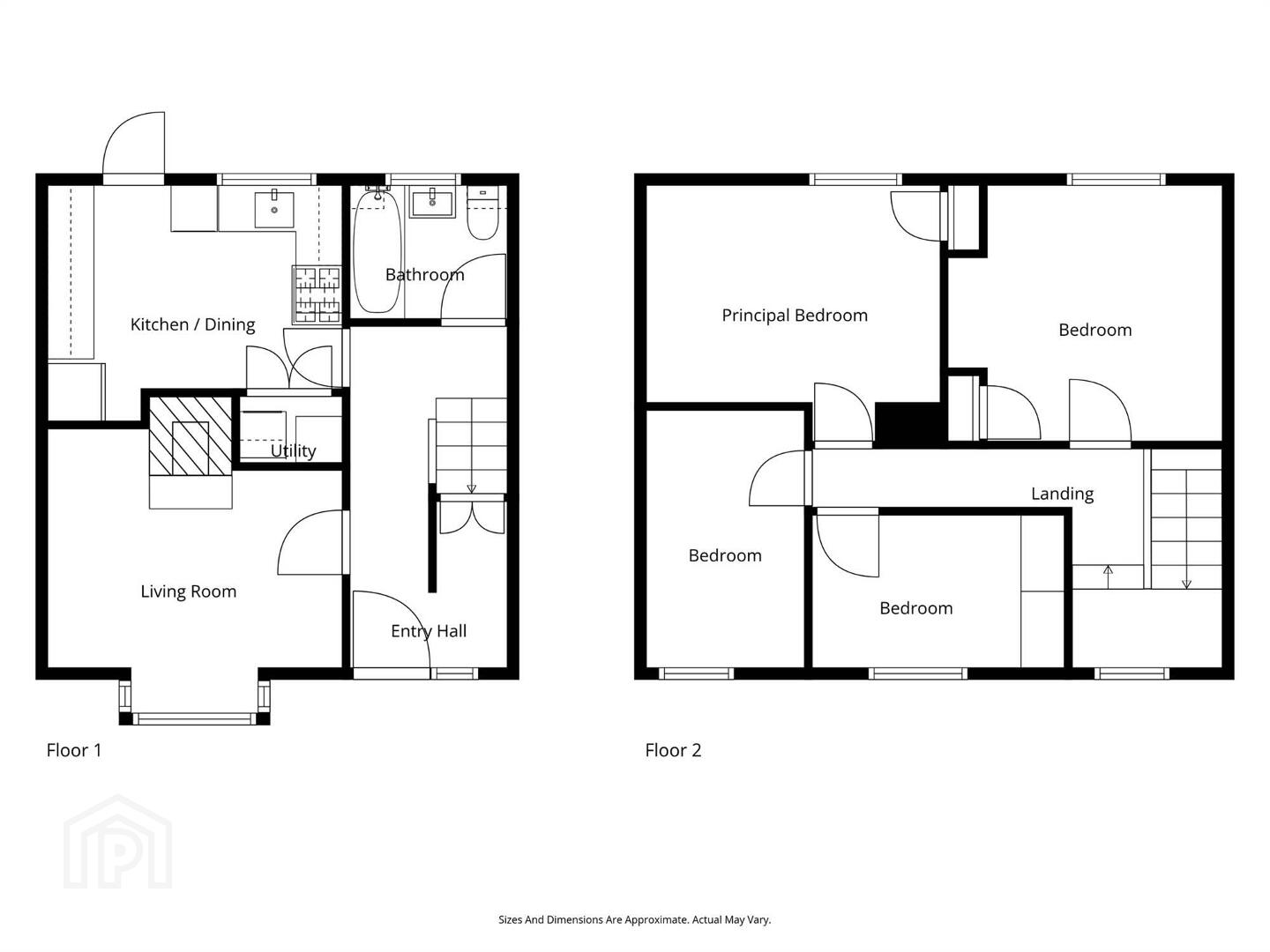
Ground Floor
- ENTRANCE HALL:
- LIVING ROOM:
- 3.81m x 3.68m (12' 6" x 12' 1")
- KITCHEN/DINING AREA:
- 3.81m x 3.05m (12' 6" x 10' 0")
Range of high and low level units, single drainer stainless steel sink unit, mixer taps. Utlity cupboard, plumbed for washing machine, part tiled walls. - BATHROOM:
- Panelled bath, electric shower over, pedestal wash hand basin, low flush wc.
First Floor
- BEDROOM (1):
- 3.81m x 3.33m (12' 6" x 10' 11")
Built-in cupboard. - BEDROOM (2):
- 3.56m x 3.33m (11' 8" x 10' 11")
Built-in cupboard. - BEDROOM (3):
- 3.33m x 2.03m (10' 11" x 6' 8")
- BEDROOM (4):
- 3.28m x 1.98m (10' 9" x 6' 6")
Outside
- Garden area to front and enclosed rear with lawn and paved area.
Directions
Blacks Road from Motorway. Left hand side, approximately one mile.
--------------------------------------------------------MONEY LAUNDERING REGULATIONS:
Intending purchasers will be asked to produce identification documentation and we would ask for your co-operation in order that there will be no delay in agreeing the sale.
