
Additional Information
- Investment Opportunity
- Single Storey Retail Unit; tenanted until 2028.
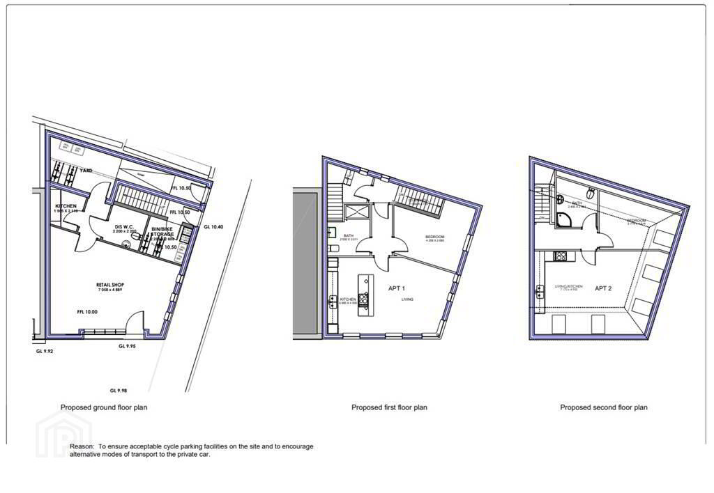
- Full Planning Pemission for New Retail Unit & 2 No. 1 Bed Apartments
- Prime Location
The subject site is situated on the corner of Falls Road and Glen Parade, West Belfast. Positioned on the main Falls Road facing The Kennedy Centre Shopping Centre. Falls Road is one of the most vibrant arterial routes in Belfast and enjoys exceptional levels of both vehicular traffic and pedestrian footfall, making it a prime location for business and investment.
DESCRIPTION
Currently comprises a single-storey retail unit with a long-established tenant in situ, providing immediate rental income.
PLANNING INFORMATION
The site has been granted full planning permissions; detailed below:
LA04/2023/3217/F (Granted) – Purposed Demolition of existing Retail Unit to provide New Build Commercial Retail Unit with 2 No. 1 Bed Apartments to Upper Floors.
PRICE
We have been instructed to seek Offers Around £124,950 (One Hundred and Twenty Four Thousand and Nine Hundred and Fifty Pounds)
FURTHER INFORMATION
For further information and/or register your interest, please contact our Commercial & Investments Team On 028 90 324 555 or Email [email protected]
Directions
Prime Falls Road Location facing Kennedy Centre.
