35 Kitcheners Avenue,
Larne, BT40 2AB
2 Bed Terrace House
Guide Price £74,950
2 Bedrooms
1 Bathroom
Property Overview
Status
For Sale
Style
Terrace House
Bedrooms
2
Bathrooms
1
Property Features
Tenure
Not Provided
Broadband Speed
*³
Property Financials
Guide Price
£74,950
Stamp Duty
Rates
£648.00 pa*¹
Typical Mortgage
Legal Calculator

For sale by Brian A Todd & Co Ltd via the iamsold Bidding Platform
Please note this property will be offered by online auction (unless sold prior). For auction date and time please visit iamsoldni.com. Vendors may decide to accept pre-auction bids so please register your interest with us to avoid disappointment.
Situated in a much sought after residential area of Larne and enjoying views to the surrounding area, this is an excellent opportunity for the purchaser to acquire this mid town house situated within easy reach of the Town Centre and all local amenities.
Comprising of two reception rooms, galley style fitted kitchen, two bedrooms and bathroom with modern white suite, the property, externally, benefits from a garage with parking, to the rear.
Highly recommended, viewing is strictly by appointment only through Agents.
3D Tour Link
https://tour.giraffe360.com/ac750c26336d47819edf42d483ace91b/
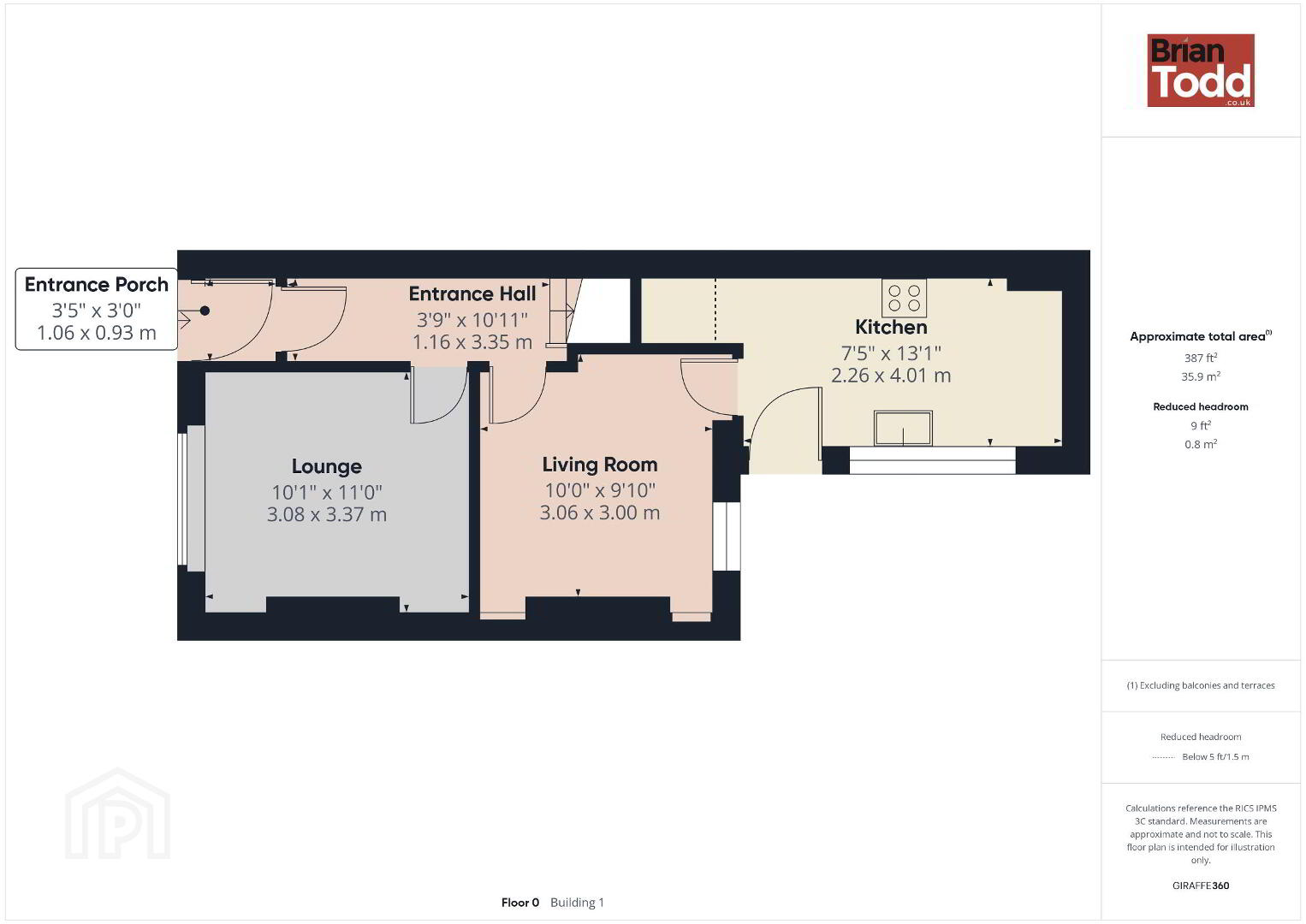
Room Measurements
Ground Floor
ENTRANCE HALL
LIVING ROOM
Feature fireplace, laminate wood flooring and dispaly shelving.
KITCHEN
Galley style kitchen with a good range of fitted upper and lower level units. Fitted extractor fan and plumbed for automatic washing machine. Floor tiling. Part wall tiling.
First Floor
BEDROOM (1)
BEDROOM (2)
BATHROOM
Modern white suite incorporating push button W.C., vanity style wash hand basin and panelled bath with shower and screen. Floor tiling. Part wall tiling.
Outside
GARAGE
With parking.
Features
Mid town house
Oil fired central heating
Upvc double glazing
Two reception rooms
Galley style fitted kitchen
Two bedrooms
Bathroom with modern white suite
Garage with parking to the rear
Much sought after residential location
Chain free
Tenure: Leasehold
Rates: £648
EPC E54
To access the legal pack, please copy and paste the link below:
http://www.iamsoldni.com/properties/22004c7096d743cd834d1b8472d6cb18/auction-pack
TO VIEW OR MAKE A BID Contact Brian A Todd & Co Ltd or iamsold, www.iamsoldni.com
Starting Bid and Reserve Price
*Please note this property is subject to an undisclosed reserve price which is generally no more than 10% in excess of the starting bid, both the starting bid and reserve price can be subject to change. Terms and conditions apply to the Unconditional Method of Auction, which is powered by IAM Sold.
Auctioneer's Comments
This property is for sale under Traditional Auction terms. Should you view, offer or bid on the property, your information will be shared with the Auctioneer, iamsold.
With this auction method, the buyer and seller must Exchange immediately, and Complete 28 days thereafter.
The buyer is required to make payment of a non-refundable Contract Deposit of 10% to a minimum of £6,000.00.
The buyer is also required to make a payment of a non-refundable, Buyer Administration Fee of 1.80% of the purchase price including VAT, subject to a minimum of £2,400.00 including VAT, for conducting the auction.
Buyers will be required to go through an identification verification process with iamsold and provide proof of how the purchase would be funded.
Terms and conditions apply to the traditional auction method and you are required to check the Buyer Information Pack for any special terms and conditions associated with this lot.
The property is subject to an undisclosed Reserve Price with both the Reserve Price and Starting Bid being subject to change.
Referral Arrangements
The Partner Agent and Auctioneer may recommend the services of third parties to you. Whilst these services are recommended as it is believed they will be of benefit; you are under no obligation to use any of these services and you should always consider your options before services are accepted.
Where services are accepted the Auctioneer or Partner Agent may receive payment for the recommendation and you will be informed of any referral arrangement and payment prior to any services being taken by you.
Energy Performance Certificate (EPCs)
Energy Performance Certificates (EPCs) give information on how to make your home more energy efficient and reduce your energy costs. All homes bought, sold or rented require an EPC. EPCs carry ratings that compare the current energy efficiency and estimated costs of energy use with potential figures that your home could achieve. Potential figures are calculated by estimating what the energy efficiency and energy costs could be if energy saving measures were put in place. The rating measures the energy efficiency of your home using a grade from ‘A’ to ‘G’. An ‘A’ rating is the most efficient, while ‘G’ is the least efficient. The average efficiency grade to date is ‘D’. All homes are measured using the same calculations, so you can compare the energy efficiency of different properties.
Ground Floor
ENTRANCE HALL
LIVING ROOM
Feature fireplace, laminate wood flooring and dispaly shelving.
KITCHEN
Galley style kitchen with a good range of fitted upper and lower level units. Fitted extractor fan and plumbed for automatic washing machine. Floor tiling. Part wall tiling.
First Floor
BEDROOM (1)
BEDROOM (2)
BATHROOM
Modern white suite incorporating push button W.C., vanity style wash hand basin and panelled bath with shower and screen. Floor tiling. Part wall tiling.
Outside
GARAGE
With parking.
