26 Pebble Bay,
Wicklow Town, A67VK49
3 Bed Terrace House
Price €385,000
3 Bedrooms
2 Bathrooms
Property Overview
Status
For Sale
Style
Terrace House
Bedrooms
3
Bathrooms
2
Property Features
Size
86 sq m (925.9 sq ft)
Tenure
Not Provided
Energy Rating

Property Financials
Price
€385,000
Stamp Duty
€3,850*²
Property Engagement
Views All Time
55

Additional Information
- Spacious 3-bedroom, 2-bathroom family home
- Prime position in Pebble Bay with outlook over green to the front
- Bright living room with bay window and feature fireplace
- Master bedroom with en-suite plus two further double bedrooms
- Large private rear garden with patio, shed and off-street parking for two cars
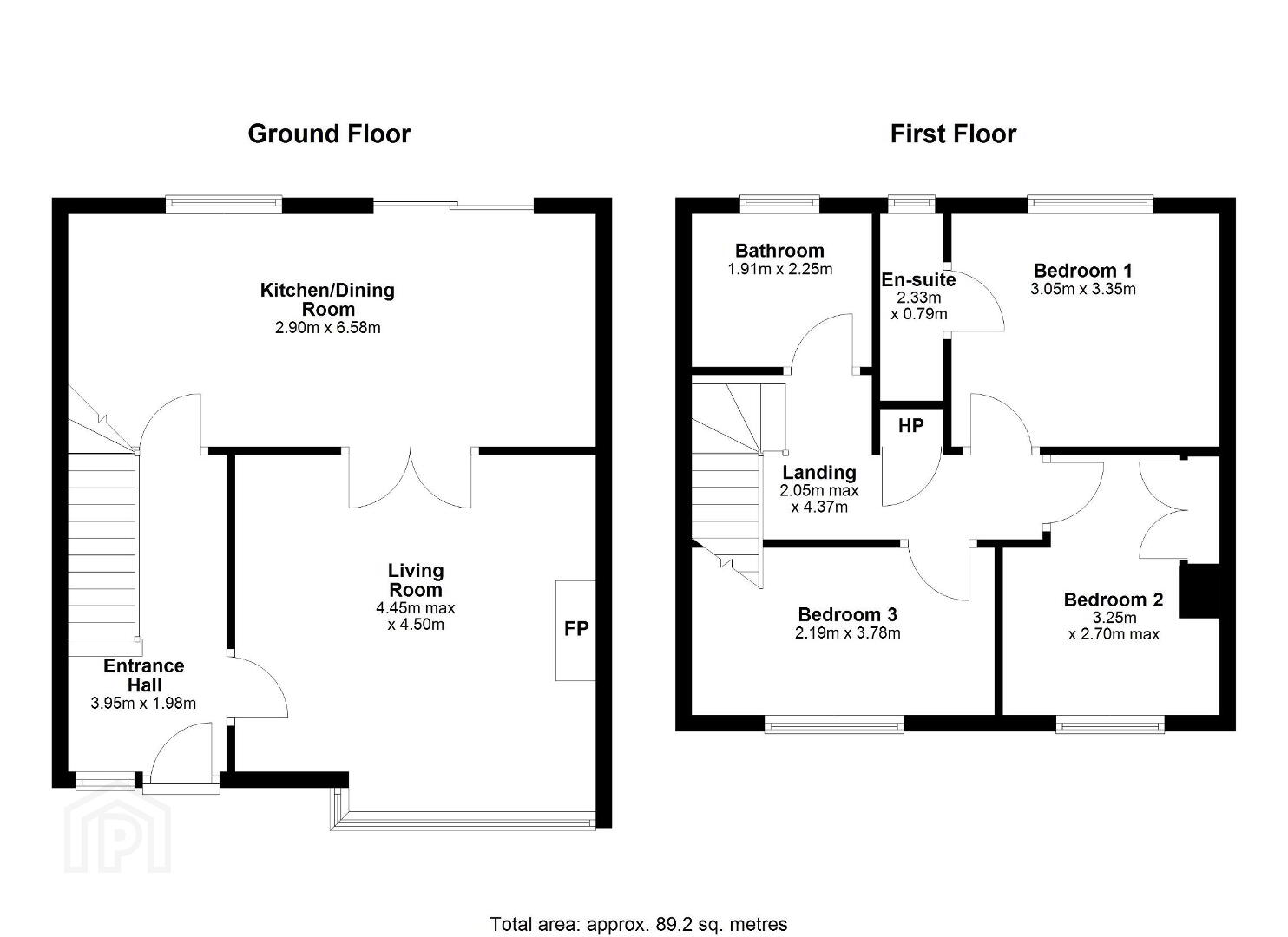
The ground floor comprises a welcoming entrance hallway, a front-facing living room with feature fireplace and bay window, and a spacious open-plan kitchen/dining room to the rear with direct access to the garden. Upstairs, the accommodation includes a master bedroom with en-suite shower room, two further double bedrooms, one with fitted wardrobe, a full family bathroom, hot press, and landing.
The front of the property provides off-street parking for two cars, while to the rear lies a large private garden, mainly laid in lawn with a patio area, timber shed, and mature planting.
Pebble Bay is a family-friendly development within walking distance of Wicklow Towns many amenities, including a choice of creches, primary and secondary schools. The town centre is a short stroll away and offers supermarkets, cafes, restaurants, sports clubs, and leisure facilities. The Murrough coastal walk and Wicklow Harbour are also close by. For commuters, the M11 is just a two-minute drive, providing quick access to Dublin and beyond, while regular bus and rail services link Wicklow with the city centre.
Wicklow Town itself is a vibrant coastal community nestled between the Irish Sea and Wicklow Mountains, with an abundance of outdoor activities on the doorstep from hiking and cycling to sailing and fishing. With its mix of natural beauty, rich history, and strong community spirit, Wicklow is a wonderful place to live and raise a family.
Viewing of 26 Pebble Bay is highly recommended.
Directions
A67 VK49
BER Details
BER Rating: C1
BER No.: 118632462
Energy Performance Indicator: 169.04 kWh/m²/yr

Click here to view the video