15 Victoria Road,
Larne, BT40 1RT
3 Bed Terrace House
Guide Price £89,950
3 Bedrooms
1 Bathroom
Property Overview
Status
For Sale
Style
Terrace House
Bedrooms
3
Bathrooms
1
Property Features
Tenure
Not Provided
Broadband Speed
*³
Property Financials
Guide Price
£89,950
Stamp Duty
Rates
£810.00 pa*¹
Typical Mortgage
Legal Calculator

For sale by Brian A Todd & Co Ltd via the iamsold Bidding Platform
Please note this property will be offered by online auction (unless sold prior). For auction date and time please visit iamsoldni.com. Vendors may decide to accept pre-auction bids so please register your interest with us to avoid disappointment.
Situated within walking distance to the Town Centre and all local amenities, this is an excellent opportunity for the purchaser to acquire this substantial three storey town house.
Affording spacious living accommodation, the property comprises of a lounge, modern fitted kitchen with integrated appliances, shower room with white suite and four bedrooms.
Externally, the property has a walled front garden and enclosed low maintenance rear garden.
Chain Free, the property is keenly priced to sell.
Features
Substantial three storey mid town house
Gas fired central heating
Upvc double glazing
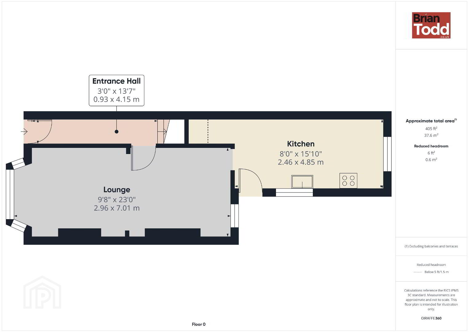
Spacious lounge with bay window
Modern fitted kitchen - integrated appliances
Shower room
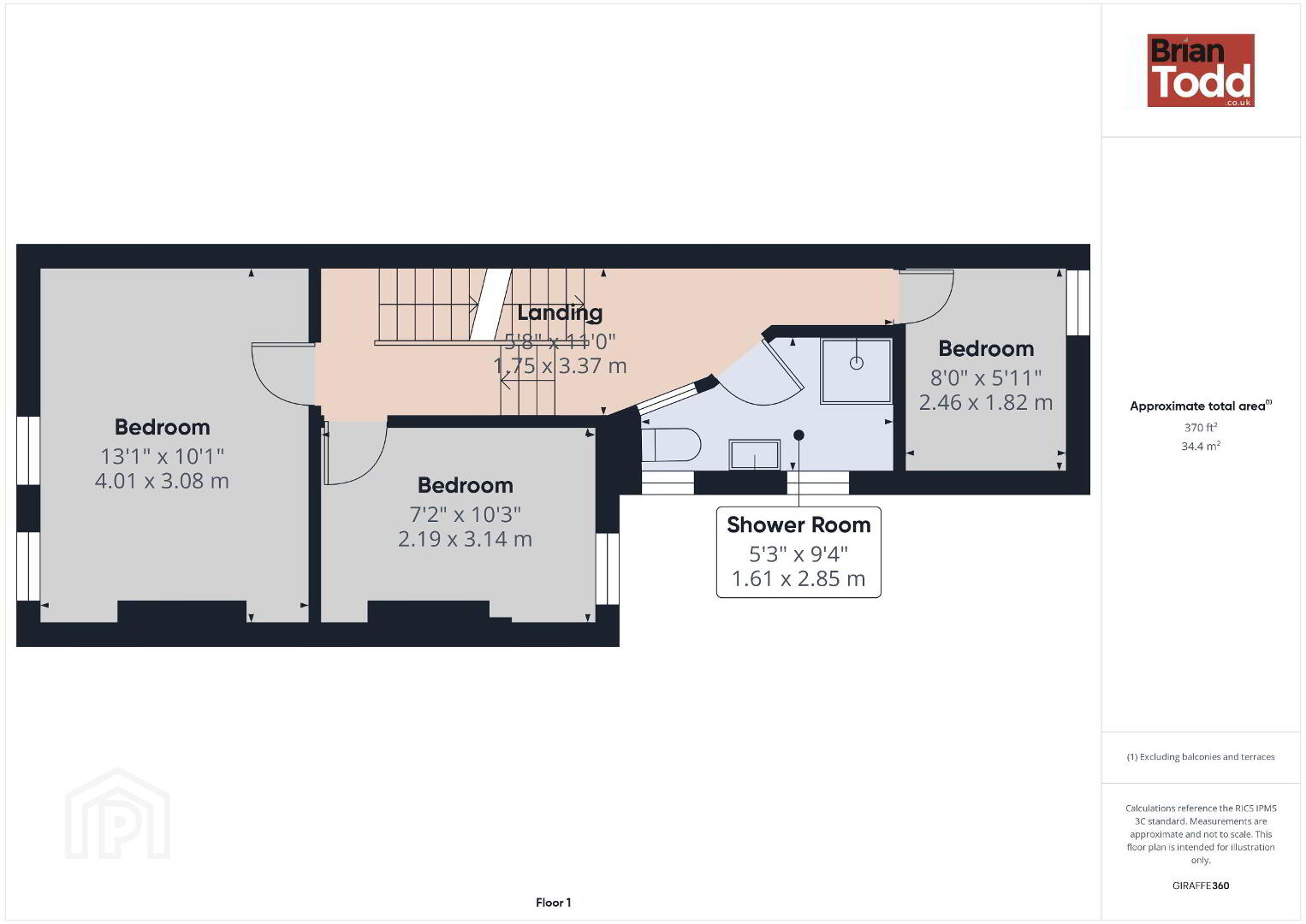
Four bedrooms
Walled front garden
Enclosed low maintenance rear garden
Popular central location
EPC Rating C72 / D61
Room Details
ENTRANCE PORCH
ENTRANCE HALL
LOUNGE
A spacious bright room, with laminate wood flooring. Bay window.
KITCHEN
Modern range of fitted upper and lower units. Integrated electric hob, oven and extractor fan. Single drainer Stainless steel sink unit. Plumbed for automatic washing machine. Floor tiling.
BEDROOMS x4
SHOWER ROOM
White suite incorporating W.C., vanity wash hand basin and separate shower cubicle.
GARDENS
Walled front garden. Enclosed low maintenance rear garden.
3D Tour - Copy and passte the following link
https://tour.giraffe360.com/23e48522dd994903a41e94762abdf089
TO VIEW OR MAKE A BID Contact Brian A Todd & Co Ltd or iamsold, www.iamsoldni.com
Starting Bid and Reserve Price
*Please note this property is subject to an undisclosed reserve price which is generally no more than 10% in excess of the starting bid, both the starting bid and reserve price can be subject to change. Terms and conditions apply to the Unconditional Method of Auction, which is powered by IAM Sold.
Auctioneer's Comments
This property is for sale under Traditional Auction terms. Should you view, offer or bid on the property, your information will be shared with the Auctioneer, iamsold.
With this auction method, the buyer and seller must Exchange immediately, and Complete 28 days thereafter.
The buyer is required to make payment of a non-refundable Contract Deposit of 10% to a minimum of £6,000.00.
The buyer is also required to make a payment of a non-refundable, Buyer Administration Fee of 1.80% of the purchase price including VAT, subject to a minimum of £2,400.00 including VAT, for conducting the auction.
Buyers will be required to go through an identification verification process with iamsold and provide proof of how the purchase would be funded.
Terms and conditions apply to the traditional auction method and you are required to check the Buyer Information Pack for any special terms and conditions associated with this lot.
The property is subject to an undisclosed Reserve Price with both the Reserve Price and Starting Bid being subject to change.
Referral Arrangements
The Partner Agent and Auctioneer may recommend the services of third parties to you. Whilst these services are recommended as it is believed they will be of benefit; you are under no obligation to use any of these services and you should always consider your options before services are accepted.
Where services are accepted the Auctioneer or Partner Agent may receive payment for the recommendation and you will be informed of any referral arrangement and payment prior to any services being taken by you.
Energy Performance Certificate (EPCs)
Energy Performance Certificates (EPCs) give information on how to make your home more energy efficient and reduce your energy costs. All homes bought, sold or rented require an EPC. EPCs carry ratings that compare the current energy efficiency and estimated costs of energy use with potential figures that your home could achieve. Potential figures are calculated by estimating what the energy efficiency and energy costs could be if energy saving measures were put in place. The rating measures the energy efficiency of your home using a grade from ‘A’ to ‘G’. An ‘A’ rating is the most efficient, while ‘G’ is the least efficient. The average efficiency grade to date is ‘D’. All homes are measured using the same calculations, so you can compare the energy efficiency of different properties.
Property Particulars
Please contact us for more information about this property.
